联系电话:186-5392-9185(微信同号)
双法兰限位伸缩器
型 号VSSJA-2
通 径DN65-DN2000
压 力PN6/10/16
温 度-20~120℃
主 材Q235
介 质海水、淡水、冷热水、饮用水、生活污水、原油、燃油、润滑油、成品油、空气、煤气
全国服务热线 18653929185(微信同号)

阀门优势

1、外表环氧树脂喷涂处理、喷涂厚度大于250um
2、所有焊接均为满焊,确保密封性
3、成型后做内壁效圆处理
4、法兰尺寸符合GB/T 12465-2002标准,同等口径重量重于其他厂家
5、从毛坯到成品包装出厂每个环节层层质检

阀门概况

333.jpg

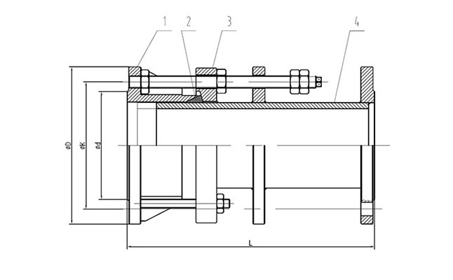
名称设计及制造结构长度试压标准法兰尺寸
参照标准GB/T 12465-2002GB/T 12465-2002GB/T 12465-2002GB/T 12465-2002
名称1-本体2-密封圈3-压盖4-限位伸缩管
材质及说明Q235三元乙丙橡胶 EPDMQ235Q235-A
公称尺寸PN6/10/16PN6
PN10
DNNPS(英寸)LδΦDΦKΦdΦDΦKΦd
652  1/2''30025160130110185145122
803''30025190150128200160138
1004''30025210170148220180158
1255''30025240200178250210188
1506''30025265225202285240212
2008''30025320280258340295268
25010''30025375335312395350320
30012''37032.5440395365445400370
35014''37032.5490445415505460430
40016''37032.5540495465565515482
45018''37032.5595550520615565532
50020''37032.5645600570670620585
60024''37032.5755705670780725685
70028''37032.5860810775895840800
80032''600659759208801015950905
90036''6006510751020980111510501005
100040''60065117511201080123011601110
120048''60065140513401259145513801330
140056''64065163015601510167515901535
160064''64065183017601710191518201760
180072''64065204519701920211520201960
200080''64065226521802125232522302170

推荐阀门

©2019品工泵阀制造(山东)有限公司版权所有地址:山东省临沂市兰陵县新兴镇北辛庄村泵阀科技产业园

微信(电话同号)
186-5392-9185

抖音

快手