1、主体采用优质碳素钢,材质成分性能达标;
2、采用F46里衬,具有极高的化学稳定性;
3、滤网采用F46材质,耐腐蚀耐用;
4、滤网目数可根据客户需要定制;
5、焊接采用机器人自动焊接一次成型,焊缝平整牢固;
6、每台产品出厂前均按国家标准试压检测。
衬氟篮式过滤器是采用氟塑料衬里层的过滤器,具有极高的化学稳定性,适用于强腐蚀性化学介质;
滤网材质为F46、F4等材质,广泛使用于石油,化工,染化,农药,制酸制碱等行业,具有耐腐蚀强、过滤效率高、维护方便等优点。

| 名称 | 设计及制造 | 试压标准 | 法兰标准 | |||
| 参照标准 | SH/T 3411-2017 | GB/T 13927-2008 | HG/T 20592-2009 | |||
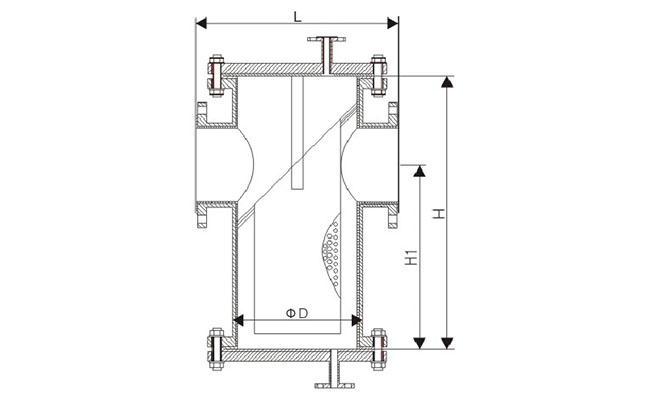
| 名称 | 1-阀体 | 2-滤芯 | 3-垫片 | |||
| 材质及说明 | Q235+F46 | F46 | PTFE | |||
| 尺寸信息 | DN | NPS | L | ΦD | H | H1 |
| 25 | 1'' | 260 | 108 | 330 | 200 | |
| 32 | 1 1/4'' | 260 | 108 | 330 | 200 | |
| 40 | 1 1/2'' | 260 | 108 | 330 | 200 | |
| 50 | 2'' | 260 | 108 | 330 | 200 | |
| 65 | 2 1/2'' | 340 | 159 | 430 | 280 | |
| 80 | 3'' | 340 | 159 | 430 | 280 | |
| 100 | 4'' | 400 | 219 | 490 | 305 | |
| 125 | 5'' | 500 | 273 | 635 | 420 | |
| 150 | 6'' | 500 | 273 | 635 | 420 | |
| 200 | 8'' | 560 | 325 | 785 | 525 | |
| 250 | 10'' | 660 | 426 | 895 | 640 | |